建筑的“快闪诗学”:如何用30天讲一个让人记住30年的故事?

每当你在社交媒体上刷到这样的画面——某个街角突然冒出一家设计惊艳的店铺,人们宁愿排队两小时也要进去看一眼、拍张照——你是否也曾心生好奇:
一家只开几周的“临时”店铺,凭什么让人如此着迷?
它背后的空间,到底讲了一个怎样的故事?
这不仅仅是商业现象,更是一场关于“建筑如何轻盈叙事”的当代实验。我们称之为“建筑轻叙事”:它不追求永恒,却在有限的时间里,用设计的力量,留下长久的记忆。
这种‘轻叙事’的成功并非偶然,它往往遵循着一套可循的设计法则。下面,我们将通过四个层层递进的案例,拆解其中的奥秘。
符号的凝练:把品牌精神,变成一眼认出的建筑语言

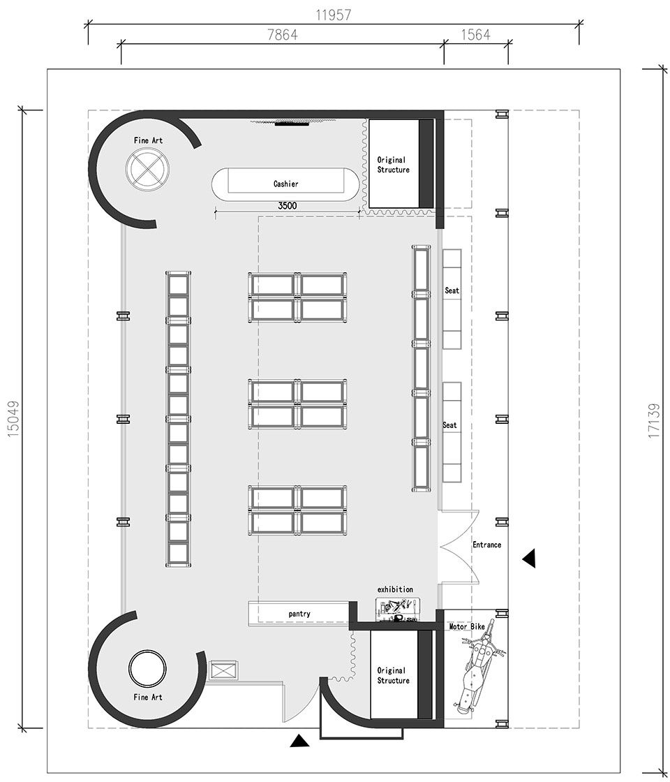
Rock&Ride 深圳万象天地快闪店
WBS里外工作室
设计灵感
建筑设计灵感来自于重工领域的燃料塔和喷射装置,以“蓄能”与“喷发”的动势统领创作。用凝练的语言转译为符号化的建筑空间。契合美式复古银饰品牌Rock&Ride的内核精神,富有激情与力量感,寓意给自由的骑士注入源源不断的动力。

建筑设计
建筑师首先将耐候钢质感的圆柱满铺场地。场地雨棚面向主街有一个悬挑趋势,顺势而为,将建筑主立面后退至雨棚斜柱边缘,地面局部抬起,范围延至场地红线,最大化城市灰空间。






它不只是一家店,更是一个大型品牌符号
从外立面的金属圆柱体,到室内家具,甚至标识系统,同一母题反复出现、不断变奏。即便匆匆路过,你也能一眼记住:很硬核,很摇滚,很有力量。




母题的贯穿
从室内家具到城市座椅,再到Logo设计,都是圆柱符号的变体,母题的统一将设计的整体性提升到新的高度。






设计启示
快闪店的第一要义,是让人“一眼认出”。符号化的设计,不是简单的形状复制,而是把品牌灵魂,铸进空间的基因里。
实践要点
将品牌核心精神转化为一个强烈的空间视觉符号,并使其贯穿建筑外观、室内家具乃至标识细节,形成统一的、过目不忘的记忆点。
概念的提纯:用最轻的建造,承载最重的体验

Jetlag Books 西单更新场限时店
方夏设计
不追求永恒也不必遗憾
一家只存在半年的书店,应该是什么样子?
设计师的回答是:像一片“云”。

“云”时代的新都市报刊亭
Jetlag Books主理人以及西单更新场业主第一次看到罗振华的概念图当即全票通过——几片飘荡在空中的“云”,阳光从云层上方洒下,Jetlag Books的期刊和他们创造的生活场景就笼罩在这片光芒下,它看上去与精致雕琢的周边商铺不同,却瞬间击中人心。

云的概念
数字“云朵”一方面回应“正在消逝”的概念,另一方面也是“云端互联时代”的具象化。原始层高受限为空间张力表现提出了挑战,于是更加扁平柔软且具有流动性的云恰好消解了这一不足。



技术追随友好
这里没有沉重的材料,没有复杂的结构。只有几片洁白的弧形板,轻盈地悬浮在空中。阳光从顶部洒下,书刊陈列其中,整个空间通透、柔软,仿佛随时会飘走。



设计启示
限制,是创意的催化剂。当时间短、预算紧,设计必须回归本质——用最简洁的手法,呈现最纯粹的概念,反而更直抵人心。
实施要点
用一个简明、易感知的概念统领全局,并采用轻量化、可快速装配的材料系统来实现,用“轻盈”的建造承载“厚重”的体验与意境。
材料的叙事:唤醒在地情感与自然记忆

深圳90后海汇快闪店
如室建筑设计事务所
品牌理念
90,一个关注文化、生活、创意的自媒体,致力于筛选出一系列优质的内容
给希望遇见有趣的人们带来最有质感的线下体验

独特设计思路
在遍地钢构玻璃的城市中,这个快闪店选择了竹子——一种生长迅速、充满东方记忆的材料。


竹制脚手架搭建起整个空间骨架,自然、透气、轻盈。它不像现代建材那样冰冷精确,反而带来一种手作的温度与随性的呼吸感。
材料本身,就诉说着关于自然、可持续与东方美学的故事。




高效搭建
通过游牧系列项目不断打磨出的更成熟和高效的落地流程,七天便完成整个场地的更替和道具搭建工作。


设计启示
材料是空间的皮肤,也是它的第一句台词。选择一种有情感、有文化的材料,能在瞬间建立连接,胜过千言万语的解释。
实施要点
选择一种自带故事与情感的材料,并用现代构造语言进行转译,让材料成为连接品牌、空间与人的第一媒介。
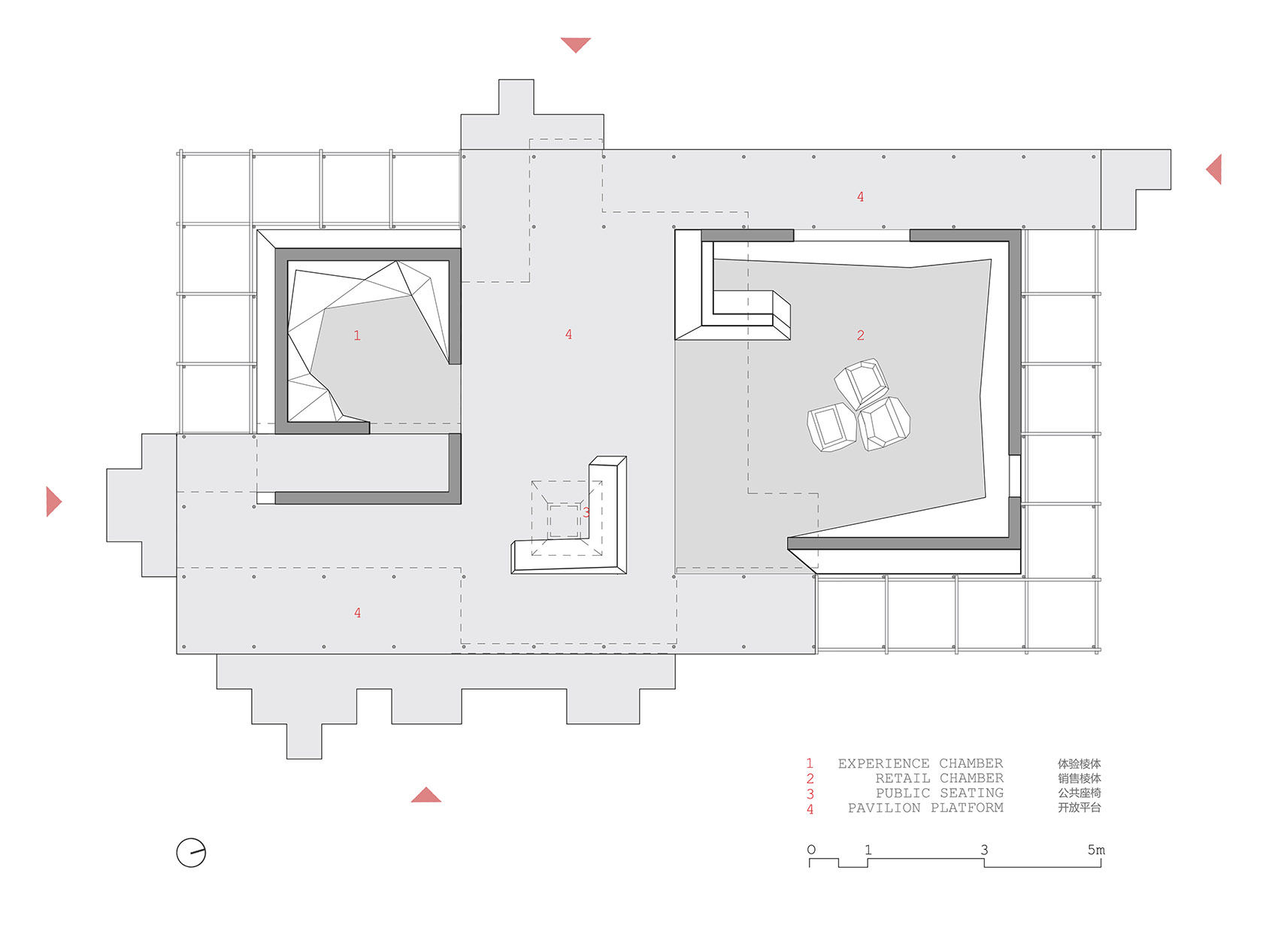
交互的深化:让人成为故事的一部分,而不只是观众

上海久光城市广场的城市光棱
芝作室
建筑场地在久光城市广场,处于摩登的购物中心和历史悠久的静安寺之间。寄望于颠覆传统临时店铺的呆板形象.
芝作室创造了一个满盈色彩与光线的城市雕塑。


这不是一家店,而是一个可以走进去的“光影装置”。
几个巨大的半透明棱柱,散落在广场上,像几块发光的水晶。白天,它们反射街景与天空;夜晚,内部灯光亮起,色彩在棱镜中流转、重叠。


你可以穿行其中,触摸表面,坐在它投下的光影里休息,或者拍一张被色彩包裹的照片。
空间不再只是背景,而是一个邀请你参与、互动、创作的主角。


位于建筑中间的‘小棱体’是一个有趣的小憩空间,透过荧光亚克力滤出的柔和暖光,映射在白色公共座椅上休息的途人。



别具一格地设计临时店铺,芝作室创造的这个互动型建筑提供的不仅仅只是消费体验。
城市光棱作为一个可供所有市民休憩体验的公共空间,表达了广场营商对城市和其栖息者的积极回馈。



设计启示
最高级的叙事,是让每个人成为故事的作者。当空间具有互动性,体验就变成记忆,打卡就变成传播。
实施要点
在空间中预设可触发行为互动与感官反馈的环节,让人从被动的观看者转变为主动的参与者与内容共创者。
快闪店,一场关于“叙事密度”的设计实验
从这四个案例中,我们可以总结出快闪店设计的 “轻叙事公式”
- 符号化表达——
- 把品牌或主题,提炼成强烈、易传播的空间符号。
- 轻量化建造 ——
- 用灵活、快速、低成本的方式,实现高质量的空间体验。
- 材料化叙事 ——
- 通过材料的选择与表达,传递情感、文化与价值观。
- 互动化参与 ——
- 设计可进入、可触摸、可拍照的环节,让人成为故事的一部分。
快闪店的启示或许在于,它重新定义了建筑的价值坐标:
从追求物理上的‘永恒’,转向追求体验上的‘不朽’。它提醒我们,真正动人的空间,不在于存在多久,而在于能在人的记忆中停留多久。
建筑可以厚重,也可以轻盈;
叙事可以漫长,也可以瞬间。
重要的不是存在多久,
而是被多少人,以怎样的方式记住。
转发给那个和你一样,对空间与故事着迷的人。
评论区聊聊:哪个快闪店设计,曾让你印象深刻?





