2023陵水环潟湖驿站设计邀请赛
三文建筑
三文建筑围绕陵水疍家的核心“以舟为家,以渔为业”展开设计。
一叶叶小小的渔船停靠在湖边,时隐时现在滔滔风浪里。桐海村沿湖而建,生产生活与水密切相关, 舟代表桐海村这种生活方式的传承。

精神地标、水岸市集、骑行公社、“海边捞”酒馆,以轻投入的方式迅速激活,运营前置,低维护。


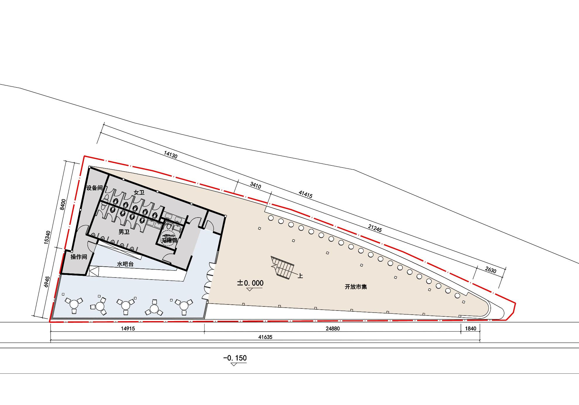
建筑分析图



二层分析图

竞赛专家评语精选
An engaging form.the overall form, and resulting spaces feel appropriate to the location and reference traditional forms.
——Terrence Curry
盐屋在原有基础上提升改造,增加了趣味性和空间体验,建筑整体色彩有冲击力,与周边的环境既独立又融合,“动与静”的结合。
——政府评委



